
ABOUT
THE JOURNEY OF SALMON.
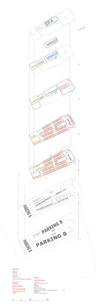
The project was born by the idea of understanding the building not only like a simple comercial center of the neighborhood but more like an hedonistic element and in a relation between the neighbors.
A proposal that similar to salmon, when swimming against the tide restarts a circle of life: the market has to be a landmark and not a repetition of a comercial center in a smaller scale.
TECHNICAL DATA
Date Contest.- March 2008.
Architects:- José Juan Barba, Spiros Papadopoulos.
Collaborators.- Pablo Cruz, Estefanía Muñoz, Patricia Huerta.
Client: Ayuntamiento de Madrid.